Początek strony
Wróć na początek strony Alt+0
Przejdź do wyszukiwarki Alt+1
Przejdź do treści głównej Alt+2
Przejdź do danych kontaktowych Alt+3
Przejdź do menu górnego Alt+4
Przejdź do menu lewego Alt+5
Przejdź do menu dolnego Alt+6
Przejdź do mapy serwisu Alt+8
Menu wysuwane
Herb podmiotu Biuletyn Informacji Publicznej Gmina Miejska Kościerzyna
Menu góra
Strona startowa Planowanie przestrzenne i gospodarka nieruchomościami Informacje dot. planowania przestrzennego Ogłoszenia
Poleć stronę

Zapraszam do obejrzenia strony „Ogłoszenie Burmistrza Miasta Kościerzyna z dnia 14 marca 2025 r. o wyłożeniu do publicznego wglądu projektu miejscowego planu zagospodarowania przestrzennego terenu pn. „Gałęźne - Stadion” w Kościerzynie - Ogłoszenia, menu 347, artykuł 1669 - BIP - Gmina Miejska Kościerzyna”

Zabezpieczenie przed robotami.
Przepisz co drugi znak, zaczynając od pierwszego.

P ) # @ % R F 3 - 0 A w s f d A P # @ :

Pola oznaczone są wymagane.

Treść główna

Ogłoszenia

Ogłoszenie Burmistrza Miasta Kościerzyna z dnia 14 marca 2025 r. o wyłożeniu do publicznego wglądu projektu miejscowego planu zagospodarowania przestrzennego terenu pn. „Gałęźne - Stadion” w Kościerzynie

Ogłoszenie Burmistrza Miasta Kościerzyna z dnia 14 marca 2025 r. o wyłożeniu do publicznego wglądu projektu miejscowego planu zagospodarowania przestrzennego terenu pn. „Gałęźne - Stadion w Kościerzynie

Na podstawie art. 17 pkt 9 ustawy z dnia 27 marca 2003 r. o planowaniu i zagospodarowaniu przestrzennym (t. j. Dz. U. z 2024 r., poz. 1130 z późn. zm.) w nawiązaniu do art. 67 ust. 3 pkt 4 ustawy z dnia 7 lipca 2023 r. o zmianie ustawy o planowaniu i zagospodarowaniu przestrzennym oraz niektórych innych ustaw (Dz. U. z 2023 r. poz. 1688) oraz zgodnie z art. 54 ust. 2 ustawy z dnia 3 października 2008 r. o udostępnieniu informacji o środowisku i jego ochronie, udziale społeczeństwa w ochronie środowiska oraz ocenach oddziaływania na środowisko (t. j. Dz. U. z 2024 r. poz. 1112 z późn. zm.) w wykonaniu uchwały Nr XLV/409/21 Rady Miasta Kościerzyna z dnia 27 października 2021 r. w sprawie przystąpienia do sporządzenia miejscowego planu zagospodarowania przestrzennego terenu pn. „Gałęźne - Stadion” w Kościerzynie zawiadamiam o wyłożeniu do publicznego wglądu projektu   miejscowego planu zagospodarowania przestrzennego terenu pn. „Gałęźne-Stadion” w Kościerzynie wraz z prognozą oddziaływania na środowisko w dniach od 21 marca 2025 r. do 14 kwietnia 2025 r.

Treść ogłoszenia

Treść uchwały w sprawie uchwalenia miejscowego planu zagospodarowania przestrzennego dla obszaru pn. Gałęźne- Stadion w Kościerzynie

Treść uzasadnienia do miejscowego planu zagospodarowania przestrzennego pn. „Gałęźne-Stadion”

Załącznik graficzny

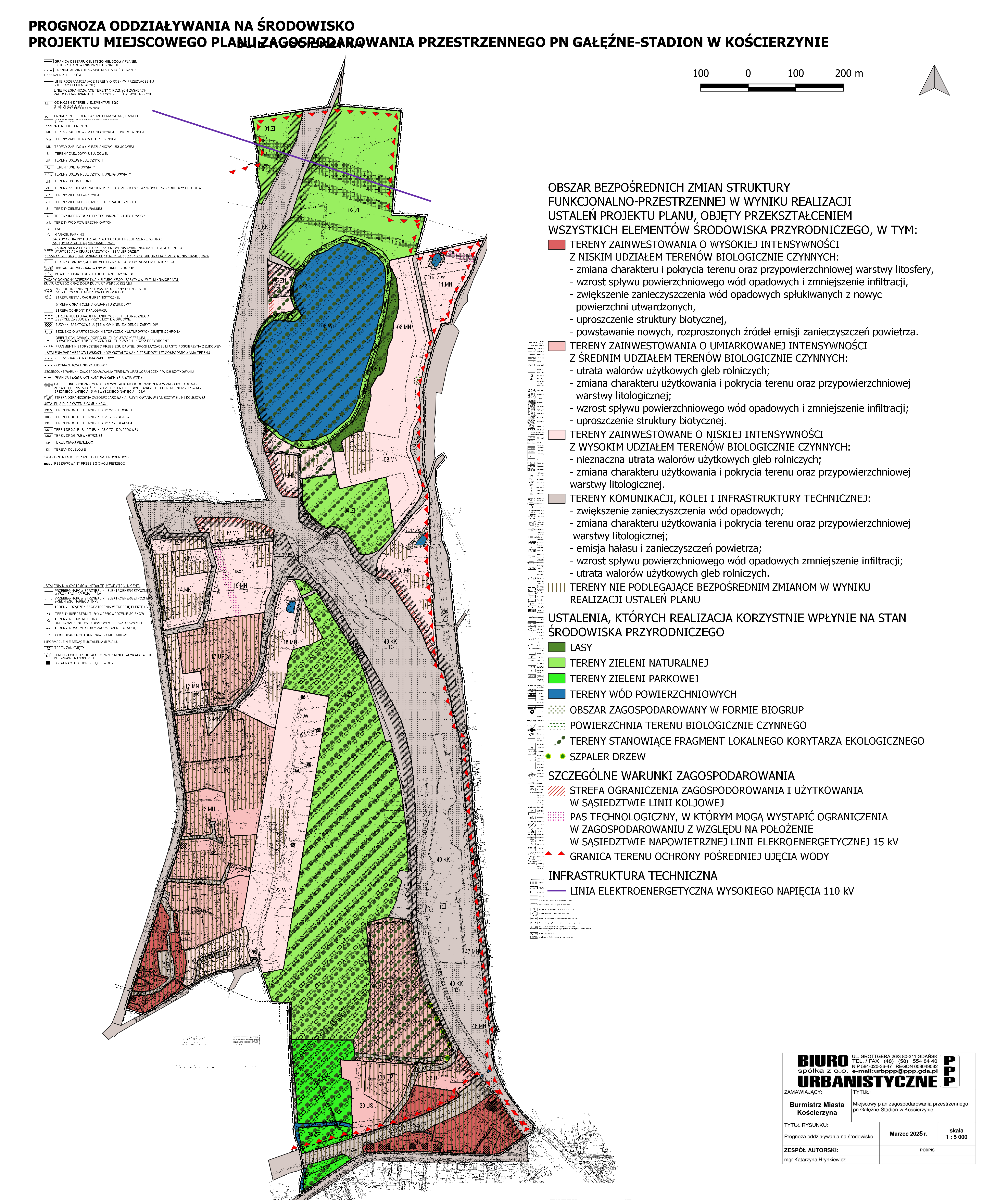
Prognoza oddziaływania na środowisko

Załącznik graficzny do prognozy

Metryka

sporządzono
2025-03-14 przez Redzimska Patrycja
udostępniono
2025-03-14 07:52 przez Redzimska Patrycja
zmodyfikowano
2025-03-21 13:01 przez Redzimska Patrycja
zmiany w dokumencie
ilość odwiedzin
143
Niniejszy serwis internetowy stosuje pliki cookies (tzw. ciasteczka). Informacja na temat celu ich przechowywania i sposobu zarządzania znajduje się w Polityce prywatności. Jeżeli nie wyrażasz zgody na zapisywanie informacji zawartych w plikach cookies - zmień ustawienia swojej przeglądarki.