Niniejszy serwis internetowy stosuje pliki cookies (tzw. ciasteczka). Informacja na temat celu ich przechowywania i sposobu zarządzania znajduje się w Polityce prywatności. Jeżeli nie wyrażasz zgody na zapisywanie informacji zawartych w plikach cookies - zmień ustawienia swojej przeglądarki.
Przejdź do treści głównej
Wróć na początek strony
Przejdź do wyszukiwarki
Przejdź do mapy serwisu

2024

Biuletyn Informacji Publicznej Gmina Miejska Kościerzyna
Poleć stronę

Pola oznaczone są wymagane.

Zapraszam do obejrzenia strony „WGN/6/2024 Przetarg na dzierżawę nieruchomości zlokalizowanej w Kościerzynie przy ulicy Przemysłowej 3 - 2024 - Ogłoszenia o przetargach i aukcjach - Planowanie przestrzenne i gospodarka nieruchomościami - BIP - Gmina Miejska Kościerzyna”

Zabezpieczenie przed robotami.
Przepisz co drugi znak, zaczynając od pierwszego.

P ) # @ % R F 3 - 0 A w s f d A P # @ :

Treść zakładkiWGN/6/2024 Przetarg na dzierżawę nieruchomości zlokalizowanej w Kościerzynie przy ulicy Przemysłowej 3

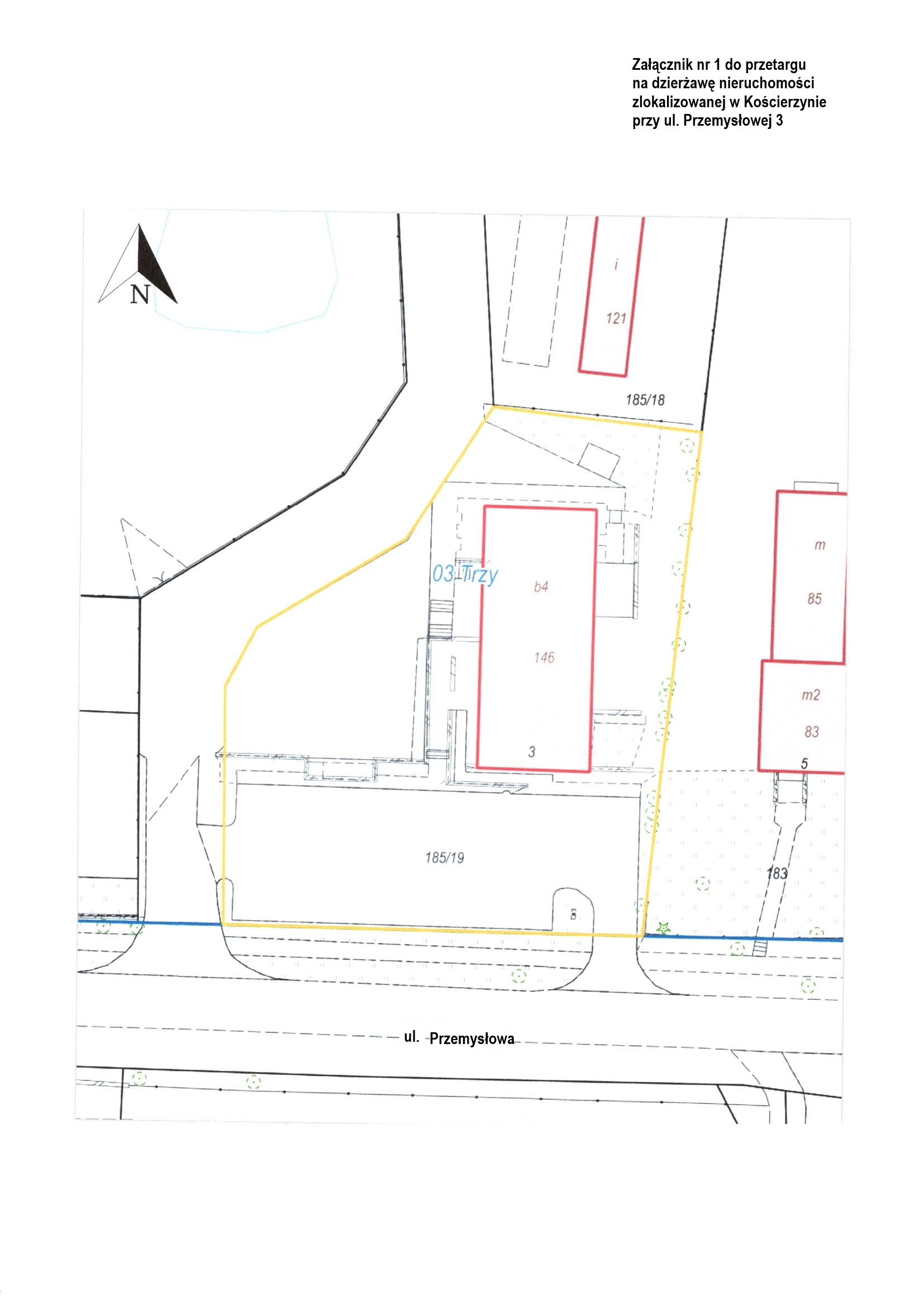
Przetarg na dzierżawę nieruchomości zlokalizowanej w Kościerzynie przy ulicy Przemysłowej 3 zabudowanej budynkiem o powierzchni całkowitej 1.657,47 m2 (na działce nr 185/19 o powierzchni 2.663 m2) w celu prowadzenia obiektu biurowego, oferującego możliwość wynajmu powierzchni biurowych i sal konferencyjnych dla przedsiębiorców.

Treść przetargu

Załącznik nr 1

Załącznik nr 2

Załącznik nr 3

Załącznik nr 4

Zmiana ogłoszenia

sporządzono
2024-09-10 przez Patrycja Redzimska
udostępniono
2024-09-10 09:27 przez Redzimska Patrycja
zmodyfikowano
2024-09-20 12:04 przez Redzimska Patrycja
zmiany w dokumencie
ilość odwiedzin
665